您当前位置 > 案例 > 翰林九境03室

翰林九境03室

王益振

DESIGNER

王益振

作品数:226从业时间:8年

擅长风格:现代、日式、北欧、欧式、中式

实景案例

201套

360°案例

35套

在建工地

25套

好评率

100%
个人简介
毕业院校:湖州职业技术学院
国家高级注册设计师
中国室内设计协会会员
温州云鸿装饰主任设计师
设计感悟:让灵感自由释放,创造一个心灵渴望的空间
设计案例:香缇公馆 同人欣园 同人花园 尚品半岛 龙湾首府 白麓城香颂院 白麓城荣御府 白麓城馨雅苑 南盛景园 南塘二组团
荣誉奖励
2016年 “大金杯”室内设计大赛
2017年被评为温州市优秀青年建筑装饰设计师
2018年 “大金杯”室内设计大赛
点击展开
找TA设计

原始户型

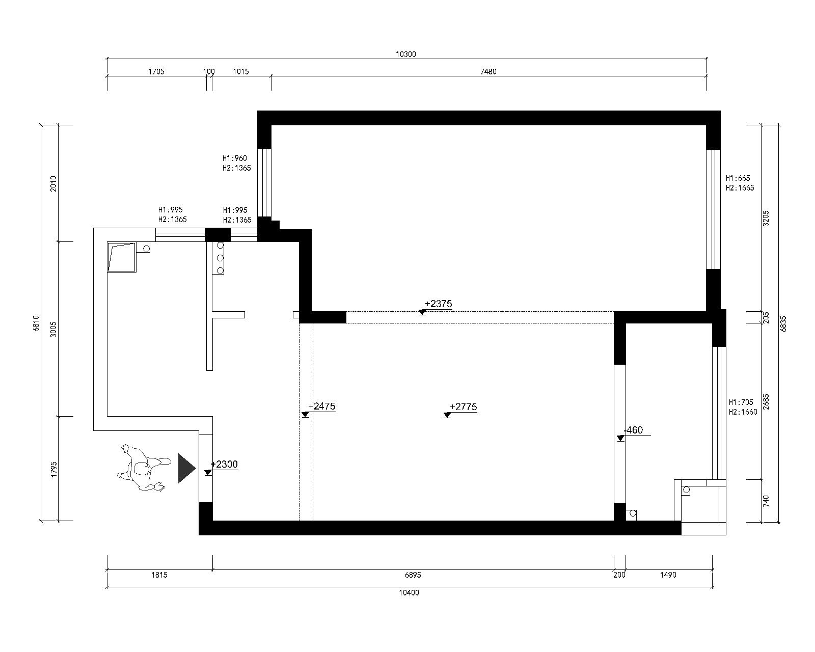
原始户型图

原始户型图

原始户型图

设计方案

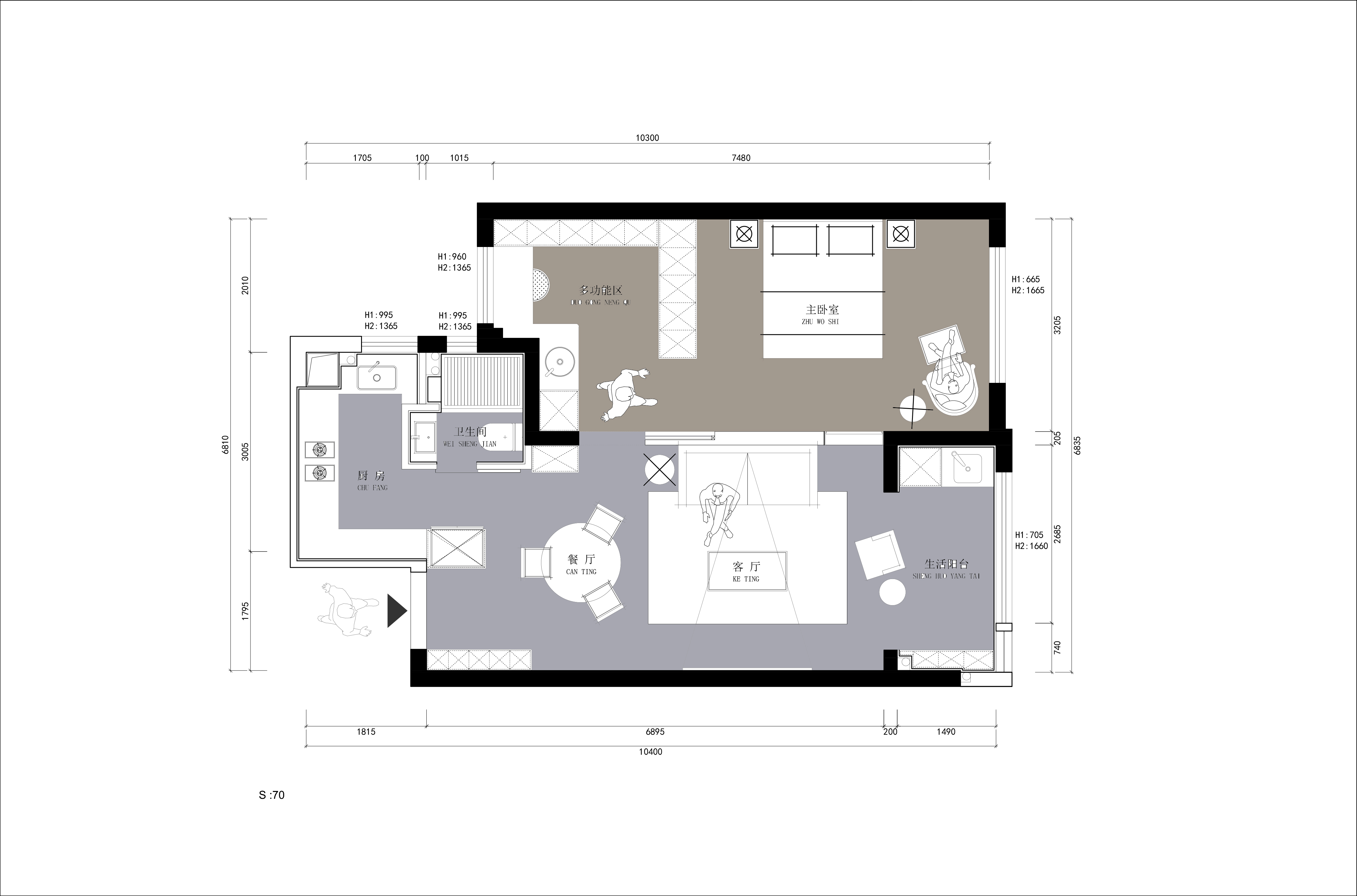
方案A

方案A

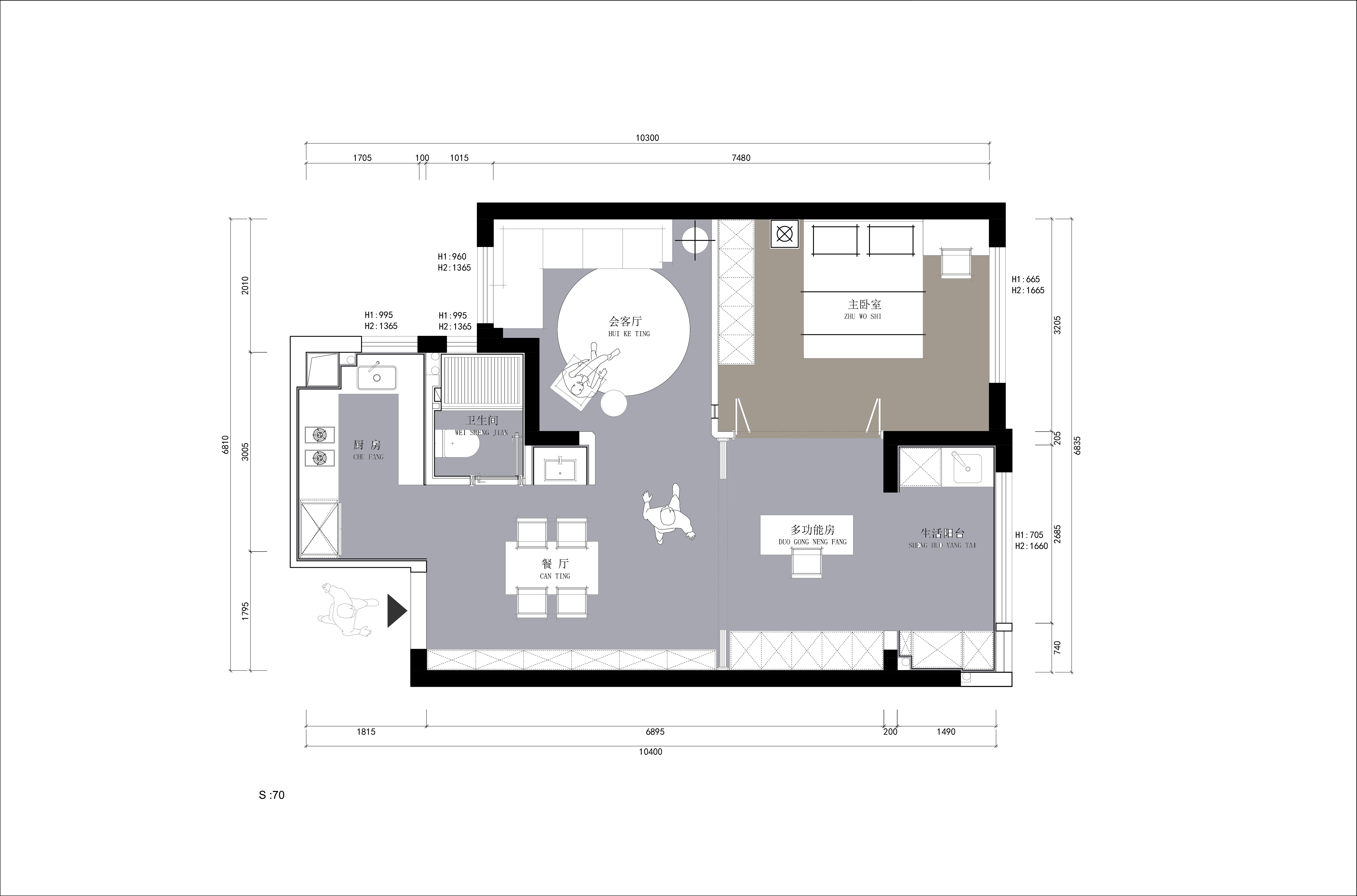
方案B

方案B

方案A
方案B

实景/参考图

参考

参考

参考

参考

参考
参考

全景效果图

在线客服

客服微信

自助报价

优惠政策

返回顶部